Services
What We Do
we specialize in creating precise, innovative wood drafting solutions that transform ideas into reality. From custom furniture designs to architectural wood accents and industrial-scale projects, we bring craftsmanship, attention to detail, and modern technology together to deliver exceptional results. Whether for residential, commercial, or industrial spaces, we collaborate with clients to craft designs that are functional, visually stunning, and tailored to their unique needs.

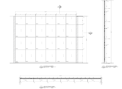
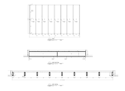
Millwork Shop Drawing Packaged
A comprehensive set of shop drawings, tailored to your company standards and templates, ensuring seamless approval, fabrication, and installation. This includes but is not limited to:
All of this is in PDF & DWG format.
We specialize in:
Commercial Millwork Shop Drawings
Commercial Casework

Wood Panel Wall


Custom Reception Desk

Wall slats


Ceiling slats


Banquette seat


